Projet de stnma

Décrivez ici votre projet de construction ou de rénovation inviduels. Votre appartement, votre maison... Partagez vos réflexions.
Règles du forum
Dans ce forum, vous pouvez décrire votre projet, partager vos rélexions vos plans, tout ce que vous voulez. Tous les sujets seront renommés "Projet de [utilisateur]" si vous ne lui avez pas donné ce titre à la base.

Tous les sujets créés n'étant pas pour présenter un projet seront déplacés dans un forum adapté.

Les personnes créant un sujet avec un projet dans ce forum seront éligibles au rang de Maître d'ouvrage et auront dès lors accès à la création de sujet sur les autres forums liés à leur projet
stnma
Messages : 34
Inscription : lun. 6 janv. 2014 11:53
Pays : Suisse
Lieu du projet : Valais
Type de projet : Construction
architecte : Petite entreprise générale locale
Date estimée de remise des clés : 30 novembre 2015
Description du projet : Construction d'une villa individuelle dans le bas-valais.
Type d'utilisateur: : Particulier

Projet de stnma

Messagepar stnma » mer. 23 juil. 2014 17:05

Bonjour,

Voici donc le projet qui nous fait rêver :-)

Il s'agit de la construction d'une villa individuelle dans le bas-valais, d'aspect moderne et avec comme critères principaux 5 grandes chambres et un grand garage.

La parcelle fait 1000m2, est plutôt carrée et se trouve en zone rouge d'inondation du Rhône. Merci la plus-value pour le béton armé, mais au moins on peut construire sous certaines conditions, ce qui n'est pas le cas pour tous les terrains en zone rouge.

Pour le descriptif technique:
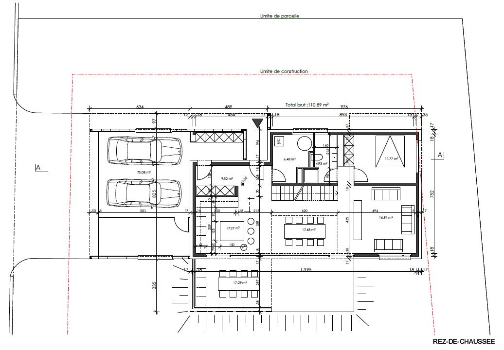
Rez: garage, réduit, hall d'entrée, cuisine-salle à manger-séjour, 1 chambre, wc/douche et local technique.
Etage: 4 chambres et salle de bain

Et en prime voici les plans que nous avons faits!

Je me réjouis de lire vos commentaires et suggestions!

A bientôt
Pièces jointes
etage.JPG
1er Etage
etage.JPG (116.86 Kio) Consulté 13719 fois
rez.JPG
Rez-de-chaussée
rez.JPG (150.21 Kio) Consulté 13719 fois
situation.JPG
Situation
situation.JPG (101.12 Kio) Consulté 13719 fois
Juillet 2012 - Achat du terrain
12.12.2014 - Mise à l'enquête
12.03.2015 - Permis de construire
23.03.2015 - Début des travaux
30.11.2015 - Remise des clés
Décembre 2015 - Déménagement

Akim
Administrateur du site
Messages : 1314
Inscription : jeu. 17 mars 2011 01:19
Pays : Suisse
Lieu du projet : Siviriez
Type de projet : Construction
EG/Architecte : Kaspar Architectes
Budget : 60kCHF
Label : Minergie-P
Description du projet : Transformation d'un atelier et une cave en 2pce type loft
Esprit contemporain et haut standing dans villa Minergie-P
Type d'utilisateur: : Particulier
Localisation : Siviriez
Contact :

Re: Projet de stnma

Messagepar Akim » jeu. 14 août 2014 01:17

Hello.

Sympa ton projet.

J'aime bien l'ouverture au dessus de la salle à manger. Ca donne du volume et de la lumière. Je trouve l'agencement de la salle de bains de l'étage sympa aussi.

Les triangles représentent des velux ?

Un petit détail: Tu prévois deux lave-linge ? car j'en vois un dans le local technique et un dans la salle-de-bains.

stnma
Messages : 34
Inscription : lun. 6 janv. 2014 11:53
Pays : Suisse
Lieu du projet : Valais
Type de projet : Construction
architecte : Petite entreprise générale locale
Date estimée de remise des clés : 30 novembre 2015
Description du projet : Construction d'une villa individuelle dans le bas-valais.
Type d'utilisateur: : Particulier

Re: Projet de stnma

Messagepar stnma » lun. 18 août 2014 08:46

Salut Akim,

Merci pour ton commentaire.

Non, les triangles ne représentent pas des veluxs mais les lits :D

Oui, on prévoit deux emplacements pour lave-linge et sèche-linge, une fois dans la salle de bain de l'étage et une autre fois dans le local technique du rez. Je ne pense pas qu'on les utilisera les deux mais on voulait se garder l'option de changer l'emplacement des machines et les faire apparaître sur le plan est le meilleur moyen je pense que les entreprises n'oublient pas les raccordements :-)
Juillet 2012 - Achat du terrain
12.12.2014 - Mise à l'enquête
12.03.2015 - Permis de construire
23.03.2015 - Début des travaux
30.11.2015 - Remise des clés
Décembre 2015 - Déménagement

stnma
Messages : 34
Inscription : lun. 6 janv. 2014 11:53
Pays : Suisse
Lieu du projet : Valais
Type de projet : Construction
architecte : Petite entreprise générale locale
Date estimée de remise des clés : 30 novembre 2015
Description du projet : Construction d'une villa individuelle dans le bas-valais.
Type d'utilisateur: : Particulier

Re: Projet de stnma

Messagepar stnma » lun. 16 mars 2015 08:56

Voilà voilà, notre permis de construire est arrivé, les choses sérieuses vont débuter sous peu pour nous!

On se réjouit de voir la maison monter, et surtout d'y entrer!

Belle journée à tous
Juillet 2012 - Achat du terrain
12.12.2014 - Mise à l'enquête
12.03.2015 - Permis de construire
23.03.2015 - Début des travaux
30.11.2015 - Remise des clés
Décembre 2015 - Déménagement

Arkip
Messages : 418
Inscription : dim. 15 sept. 2013 23:30
Pays : ch
Lieu du projet : vallorbe
Type de projet : Construction
architecte : Grande entreprise générale
EG/Architecte : AGV
Description du projet : Villa individuelle, 180 m2, 2 étages, 3 chambres
Type d'utilisateur: : Particulier

Re: Projet de stnma

Messagepar Arkip » lun. 16 mars 2015 10:32

Chouette pour vous ! Vivement les photos des premiers coups de pelle :-)
14.02.2014 - achat du terrain
1.07.2014 - signature EG
8 août 2014 - mise à l'enquête
17.10.2014 - permis de construire
31.10.2014 - début des travaux
14.04.2015 - sous toit
11.05. 2015 - chapes

8 août 2015... déménagement !

Virginiegs
Messages : 22
Inscription : sam. 18 avr. 2015 14:20
Pays : Suisse
Type de projet : Construction
architecte : Grande entreprise générale
Type d'utilisateur: : Particulier

Re: Projet de stnma

Messagepar Virginiegs » sam. 18 avr. 2015 14:21

Super chouette !
Combien de temps avez-vous attendu pour l'obtention du permis de construire ?

stnma
Messages : 34
Inscription : lun. 6 janv. 2014 11:53
Pays : Suisse
Lieu du projet : Valais
Type de projet : Construction
architecte : Petite entreprise générale locale
Date estimée de remise des clés : 30 novembre 2015
Description du projet : Construction d'une villa individuelle dans le bas-valais.
Type d'utilisateur: : Particulier

Re: Projet de stnma

Messagepar stnma » lun. 20 avr. 2015 08:01

Bonjour,

Trois mois tout pile.
Juillet 2012 - Achat du terrain
12.12.2014 - Mise à l'enquête
12.03.2015 - Permis de construire
23.03.2015 - Début des travaux
30.11.2015 - Remise des clés
Décembre 2015 - Déménagement

Akim
Administrateur du site
Messages : 1314
Inscription : jeu. 17 mars 2011 01:19
Pays : Suisse
Lieu du projet : Siviriez
Type de projet : Construction
EG/Architecte : Kaspar Architectes
Budget : 60kCHF
Label : Minergie-P
Description du projet : Transformation d'un atelier et une cave en 2pce type loft
Esprit contemporain et haut standing dans villa Minergie-P
Type d'utilisateur: : Particulier
Localisation : Siviriez
Contact :

Re: Projet de stnma

Messagepar Akim » lun. 20 avr. 2015 12:16

Enorme trois mois :cry: . Mais maintenant, c'est dans la poche :) Bravo.

stnma
Messages : 34
Inscription : lun. 6 janv. 2014 11:53
Pays : Suisse
Lieu du projet : Valais
Type de projet : Construction
architecte : Petite entreprise générale locale
Date estimée de remise des clés : 30 novembre 2015
Description du projet : Construction d'une villa individuelle dans le bas-valais.
Type d'utilisateur: : Particulier

Re: Projet de stnma

Messagepar stnma » mar. 21 avr. 2015 10:56

On n'a pas été surpris, c'est le délai qui nous avait été annoncé au départ.

Mais oui, maintenant c'est dans la poche et les ouvriers profitent bien de la météo clémente pour avancer :-)
Juillet 2012 - Achat du terrain
12.12.2014 - Mise à l'enquête
12.03.2015 - Permis de construire
23.03.2015 - Début des travaux
30.11.2015 - Remise des clés
Décembre 2015 - Déménagement

stnma
Messages : 34
Inscription : lun. 6 janv. 2014 11:53
Pays : Suisse
Lieu du projet : Valais
Type de projet : Construction
architecte : Petite entreprise générale locale
Date estimée de remise des clés : 30 novembre 2015
Description du projet : Construction d'une villa individuelle dans le bas-valais.
Type d'utilisateur: : Particulier

Re: Projet de stnma

Messagepar stnma » mer. 29 avr. 2015 13:35

Et voilà les premières photos, le chantier avance bien et on est complètement accaparés par les choix à faire et les premiers petits bugs et corrections.

Rien de grave néanmoins, et pour l'instant c'est l'euphorie! :D
terrassement.jpg
terrassement.jpg (32.26 Kio) Consulté 12479 fois
fondations.jpg
fondations.jpg (24.92 Kio) Consulté 12479 fois
radier.jpg
radier.jpg (29.5 Kio) Consulté 12479 fois
Juillet 2012 - Achat du terrain
12.12.2014 - Mise à l'enquête
12.03.2015 - Permis de construire
23.03.2015 - Début des travaux
30.11.2015 - Remise des clés
Décembre 2015 - Déménagement


Qui est en ligne ?

Utilisateurs parcourant ce forum : Aucun utilisateur inscrit et 13 invités