Beau projet, félicitations!
Si j'ai bien compris, l'entrée se fait par le sous-sol, puis on prend l'escalier pour monter au rez? Je vous conseille vivement d'élargir l'espace entre la porte et l'escalier - c'est là que l'on accueille les invités, on se dit au revoir, on enlève les manteaux.. c'est vraiment trop petit pour une belle, grande maison. Je déplacerai la porte (celle avec A') jusqu'au derrière le chiffre 309 (la cote). Comme ça, on aurait un bel espace d'accueil et une penderie plus grande. Je vois qu'il y a des armoires aussi en haut, mais les chaussures sales (hiver, automne, pluie...) devraient rester en bas.
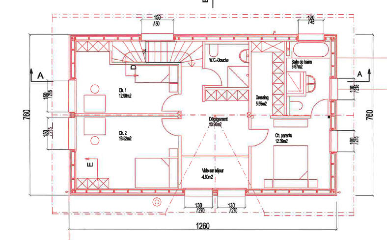
Au rez, j'ai toujours un problème avec la porte des toilettes tournées vers la salle à manger - il y a toujours quelqu'un qui laisse la porte ouverte, puis à table on entend l'eau remplir le réservoir de wc

et on sens l'odeur de spray "super-brise-océan-fraicheur". Peut-on se passer des toilettes à ce niveau, et compter sur ceux - du coup mieux aménagés, du sous-sol?
Encore au rez, le coin en haut à gauche - il y a un mini espace avec les armoires, et devant - une belle porte-fenêtre. Ma suggestion - enlever les armoires et laisser la place à un beau fauteuil (Eames Lounge Chair

) et une petite table, d'où on profitera de la lumière et de la vue.
Voilà, peut-être l'une de ces suggestions vous paraitra intéressante
