Page 1 sur 4
Projet de Sigma & Laura_87
Publié : mer. 27 mai 2015 14:02
par Sigma
Bonjour à tous !
voilà on a reçu notre premier jet de plans et du coup on partage pour avoir vos avis !
On va construire avec les pro du logis, du coup on a pas des possibilités folles en terme de modification mais c'est très volontiers qu'on prend vos idées.
C'est une maison mitoyenne avec une parcelle de 1400m2 à La Sarraz, l'orientation de la maison est ce qu'elle est, on ne peut pas modifier, et on ne peut pas vraiment construire qqch de plus a l'exterieur. Par contre quasi tout est possible a l'intérieur.
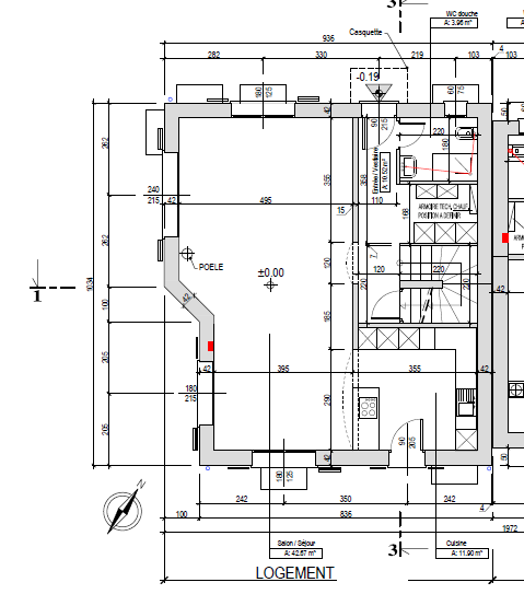
Le rez:
Note. La salle de bain sera changée: Baignoire a la place d'une douche

- Rez
- rez.PNG (44.35 Kio) Consulté 16478 fois
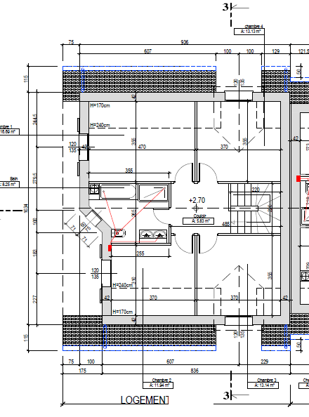
Le 1er:
Note. La salle de bain sera changée: Grande douche italienne, et pas de baignoire.

- 1er
- 1er.PNG (43.33 Kio) Consulté 16478 fois
La cave:

- Cave
- Cave.PNG (54.82 Kio) Consulté 16478 fois
Re: Projet de Sigma & Laura_87
Publié : mer. 27 mai 2015 14:03
par Sigma
Et une photo du terrain:

- Terrain
- 2015-05-17 18.33.56.jpg (189.6 Kio) Consulté 16476 fois
Re: Projet de Sigma & Laura_87
Publié : mer. 27 mai 2015 14:23
par knarf68
Beau projet.
Je ferais un grand îlot central se transformant en table dans la partie séjour dans l'axe de la grande porte fenêtre.
Pourquoi avoir un local technique au rez si vous avez un si grand sous-sol, ne serait-il pas mieux d'utiliser cette surface pour un simple WC visiteur ?
Re: Projet de Sigma & Laura_87
Publié : mer. 27 mai 2015 14:25
par Sigma
A quoi ça ressemble ton ilot central? Il y aurait pas un problème de hauteur?
Il y a que la boite au fond qui est une gaine technique visible (tyaux de chauffages); le reste c'est des armoires murales.
Re: Projet de Sigma & Laura_87
Publié : mer. 27 mai 2015 15:12
par knarf68
j'enlèverais toutes les parois du rez ainsi que les armoires cuisine d'un côté pour les remplacer par un îlot central.

- plan central.png (38.96 Kio) Consulté 16466 fois
ça ferait une grande pièce dégagée depuis la porte d'entrée. Je trouve dommage d'avoir un couloir cachant une si grande pièce à vivre....
Il y a vraiment le moyen de faire une cuisine impressionante avec la surface disponible, il serait dommage de la cacher dans un coin....
Bon c'est très personnel, je l'avoue....
Re: Projet de Sigma & Laura_87
Publié : mer. 27 mai 2015 15:21
par laura_87
Idée intéressante mais les murs que tu proposes d'enlever sont des murs porteurs, on ne pourra pas les bouger.
Et pour la cuisine, effectivement ça donne un bel espace pour manger mais plus beaucoup de place de rangement et d'espace pour le four (standard + combi) et le frigo ou alors il faut mettre des meubles dans la salle à manger ce qui n'est pas le but ni forcément très pratique à mon avis.
Re: Projet de Sigma & Laura_87
Publié : mer. 27 mai 2015 16:11
par knarf68
Effectivement, si ce sont des murs porteurs ça va être difficile de les suprimer, mais il y a sans doute moyen d'ouvrir un bout, ils n'ont pas l'air si large... peut-être deux ou trois piliers avec une poutre....
Pour la place dans la cuisine, avec 3.5 m de large, il y a la place pour mettre 5 airmoires hautes dans le fond, plus un bouteillé, c'est déjà pas mal. Ensuite sous l'îlot il y a aussi pas mal de place (voir mon projet pour avoir une idée).
Pour ma part je vais prendre un four combiné au lieu de d'un four et un combi, ça fait un peu plus de place dans les armoires...
Ce que j'ai fais, je n'ai pas tenu compte des proposition de l'EG pour la cuisine, j'ai directement demandé aux spécialistes de me proposer qqe chose en suivant mon cahier des charges. C'est assez impressionant de voir les différences entre les propositions.
Re: Projet de Sigma & Laura_87
Publié : mer. 27 mai 2015 16:25
par laura_87
J'y ai pensé juste après t'avoir répondu du pilonne de soutien. Une piste à garder en tête.
Je comprends mieux ta suggestion cuisine après avoir vu ton projet, j'aime bien l'idée à voir aussi

Merci
Re: Projet de Sigma & Laura_87
Publié : jeu. 28 mai 2015 20:13
par sleepweek
Hello concernant la baignoire au rez et la douche italienne au 1er , vous êtes sûrs? Si jamais fauteuil roulant, jambe dans le plâtre ou handicap quelconque, une douche serait préférable au rez je pense. Prenez vous autant de bain que ça?
Re: Projet de Sigma & Laura_87
Publié : jeu. 28 mai 2015 20:18
par Sigma
Non justement on ne prend quasi pas de bains, mais ça permettra de mettre les enfants au bains, et d'aller lancer le repas tout en gardant un oeil/oreil sur eux. En mettant les deux en haut, on a peur que ça soit serré.
Si vraiment on a un gros handicap qui arrive, on peut toujours rénover la baignoire en douche, mais sinon, il y aura toujours une grande douche en haut.