Page 1 sur 2
Votre avis sur les plans?
Publié : mer. 25 mai 2011 23:10
par didibusz
Bonjour,
Nous avons reçu les plans provisoires suivants...
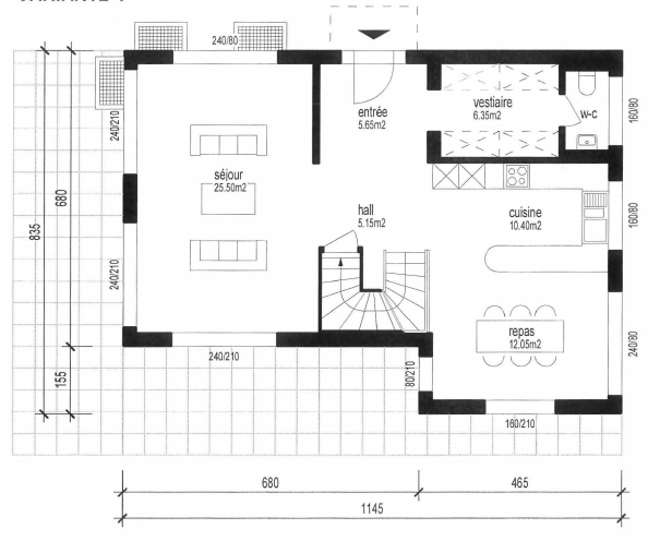
Rez-de-chaussée:

- PrintScreen_ 2011-05-25 à 23.08.46.png (145.94 Kio) Consulté 12248 fois
Etage

- PrintScreen_ 2011-05-25 à 23.08.57.png (138.45 Kio) Consulté 12248 fois
J'aime beaucoup l'aspect d'avoir une salle de bain et WC avec notre chambre afin de pouvoir laisser les invités que nous accueillons librement dans l'autre salle de bains, mais cela me dérange aussi d'entrer dans ma chambre directement sur la baignoire... Il faut que je réfléchisse encore.
Mais quels sont vos avis?
Merci par avance

Re: Votre avis sur les plans?
Publié : mer. 25 mai 2011 23:40
par Scratina
Salut,
Très intéressant tes plans. Ce qui me dérange c'est l'emplacement des escaliers au rez, je trouve qu'il est dommage de couper la pièce ainsi mais en même temps il n'y a pas 40 solutions....
Dans ta chambre à coucher, j'inverserais le dressing et la salle de bain, je préfère traverser le dressing pour arriver dans la chambre. En + les écoulements seront plus proches de l'autre sdb...
Juste qques questions : as-tu un sous-sol car je n'ai pas vu de buanderie ni de cave ?
Chouette projet, mais comme toi on est en plein dans les plans... pas toujours facile de se rendre compte des choses. b
Bonne continuation.

Re: Votre avis sur les plans?
Publié : ven. 27 mai 2011 13:04
par Vitamineb12
Je trouve particuliers de mettre une salle d'eau dans la chambre à coucher avec seule séparation un mur ....
Perso, comme dis plus bas, je metterais le dressing dans la chambre et la salle de bain je la séparerais de la chambre par une porte.
Une chambre doit rester un chambre, j'ai soucis pour la tranquilité que doit apporter une chambre à coucher.... Ma réflexion est bien entendu personnelle

Re: Votre avis sur les plans?
Publié : ven. 27 mai 2011 13:29
par Invité
Ben moi, je ne suis pas tout à fait d'accord. Dans la plupart des cas, la chambre parentale sert aux 2 parents en même temps. Donc, je vois mal l'un des 2 dormir pendant que l'autre se prélasse dans un bain. Et quand bien même, prendre un bain ne fait pas trop de bruit. Il est beaucoup plus important à mes yeux, et d'ailleurs c'est comme ça sur le plan, que le WC soit bien séparé de la chambre. Cette manière de faire est très originale. Ça ne veut pas dire forcément que c'est un plus en cas de revente, mais moi, je trouve ça pas mal.
Pour ce qui est du bas, si comme moi tu reçois toujours tes invités dans la cuisine/coin à manger et qu'ils se répartissent entre le bar et la table, pas de problèmes. Si tu les reçoit dans le salon, la personne qui sera aux fourneaux ne pourra pas participer aux conversations la plupart du temps. C'est juste le bémol que je vois.
Re: Votre avis sur les plans?
Publié : ven. 27 mai 2011 23:12
par didibusz
Personnellement nous sommes assez pour séparer aussi et c'est dans ce sens que l'on va se diriger certainement. En effet, j'adore dormir le matin alors que madame se lève plutôt très très tôt...

Mais les commentaires sont toujours très apprécié

Re: Votre avis sur les plans?
Publié : sam. 28 mai 2011 13:23
par chocotte
hello,
alors perso je séparerais aussi la partie eau de la chambre, parce que celui qui dort va pas trop apprécier l'autre qui se lève tôt ou se couche tard...
et vous voulez pas mettre 1 douche au lieu de 2 baignoires ??? ici on prends jamais de bain, alors on a mis juste une petite pas trop chère pour les enfants...
Je sais pas combien vous être en famille mais ne faudrait il pas encore un bureau ??
L'emplacement de l'escalier me gêne aussi un peu ...cette coupure entre la salle à manger et le salon ...mais après c'est une question d'habitude.
ici on voulait un grand espace pour pouvoir aligner des tables quand on est plus de 20 à manger

ok c'est pas souvent...mais quand même 1 fois par année en tout cas (chez nous...)
Bon courage pour la suite.
Re: Votre avis sur les plans?
Publié : sam. 28 mai 2011 13:40
par botchet
Bonjour,
J'aime beaucoup le coin salon et cuisine séparé, cela peut faire bizarre sur les plans mais dans la vie de tout les jours vous serez ravi de cette aspect cocon.
Pour le haut comme les autres, entrer sur la baignoire pas top, vous n'allez pas vous y sentir à l'aise. De plus la tête de lit contre un point d'eau c'est à éviter pour la qualité du sommeil à moins de faire une paroi double (double mur). Dans la petite chambre du haut il serait joli et facilement réalisable d'arrondir le coin du mur de la salle de bains, cela sera plus harmonieux.
J'aime beaucoup en tout cas

Re: Votre avis sur les plans?
Publié : sam. 28 mai 2011 15:10
par coco80
Je n'aime pas trop l idée d une baignoire juste séparée par un mur, question humidié. Et je ne suis pas d'avis de Maidec, j'aime dormir encore tranquille dans mon lit le matin quand mon mari se lève à 5h30 pour partir bosser et qu il prend sa douche. Nous avons la sdb à coté de notre chambre, l isolation est bonne donc s il ferme la porte de la sdb, je peux encore dormir.
Et avoir 2 baignoires dans une maison, je ne trouve pas très utile, dans ce cas la, je mettrais plutot une douche.
J inverserais aussi, je mettrais sdb au lieu de la penderie, et je ferais une belle penderie quand vous entrez dans la chambre, ca ne dérange pas.
Par contre j'aime bien les plans du rez, et sympa aussi de séparer un peu la cuisine du salon.
Re: Votre avis sur les plans?
Publié : sam. 28 mai 2011 15:15
par coco80
il doit y avoir un sous sol car je vois des sorties de saut de loup sur les plans ?
Re: Votre avis sur les plans?
Publié : sam. 28 mai 2011 18:51
par didibusz
Bonjour!
Oui, il y a bien un sous-sol qui fait l'entier de la maison. Mais vu qu'il s'agit d'un simple sous-sol, je ne l'ai pas mis.
Ces plans étaient les plans standards de la maison avec possibilité de tout changer. Il est donc clair que nous allons inverser penderie et salle-de-bains. Ensuite, il y aura bien une douche en haut à la place d'une baignoire. Nous y avons pensé hier soir mais merci pour l'info! On aurait encore pu y passer à côté.
Finalement, la séparation salon <> salle à manger était importante pour nous car nous avons sommes actuellement dans un appartement avec une vue de la cuisine au salon en passant par la salle à manger et je n'aime pas trop que l'on voit tout. j'aime plutôt ce côté séparé mais pas trop.
Finalement (bis), nous allons faire ajouter une pièce au rez ( en plus de ce qui existe déjà plutôt que de diminuer ce qui existe). et on va rajouter une douche également. Je vous mettrais les plans quand ils auront été retravaillés
Merci encore pour les commentaires.